
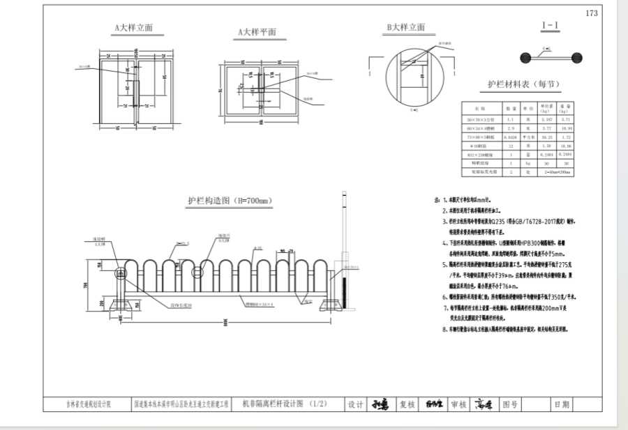
辽宁省本溪市明山区新建立交京式机非隔离栏杆生产厂家
1、本图尺寸单位均以mm计。
2、本图仅适用于机非隔离栏杆加工。
3、栏杆立柱所用冷弯管材质为Q235(符合GB/T6728-2017规定)制作,特别要求管类构件壁厚不得有下差。
4、下拉杆采用热轧轻型槽钢制作,U型圆钢采用HPB300钢筋制作,格栅各构件间采用周边角焊缝、双面角焊缝焊接,焊脚尺寸高度不小于5mm。
5、隔离栏杆采用热浸镀锌聚酯复合涂层防腐工艺。平均热浸镀锌量不于275克/平米,平均镀锌层厚度不小于39μm,注意管类构件内外均应镀锌防腐:聚酯涂层采用白色,最小厚度不小于76μm。
6、螺栓紧固件采用普通C级;所有螺栓热浸镀锌防腐平均镀锌量不低于350克/平米。
7、每节隔离栏杆立柱上设置一处轮廓标,机非隔离栏杆采用高200mmV类荧光白反光膜固定于隔离栏杆立柱处。
8、车辆行驶指示标志立柱插入隔离栏杆端铸铁基座中固定,相关结构另见详图。