广西桂林至钦州港公路人行天桥防抛网专业生产厂家
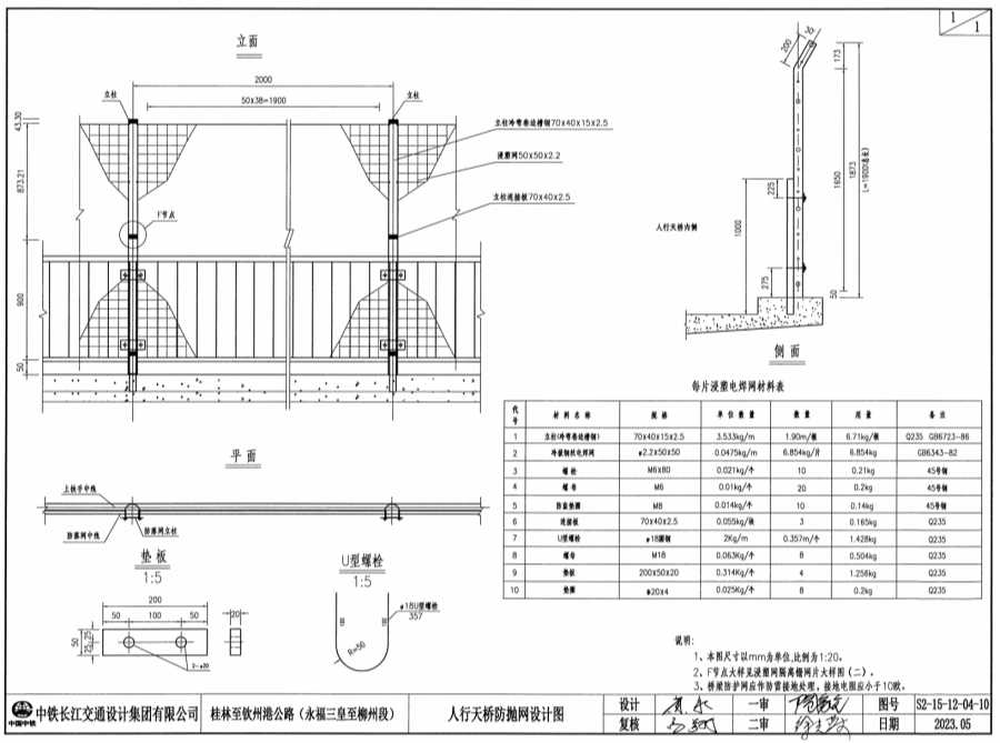
1、本图尺寸单位以mm计,本图比例为1:20。
2、F节点大样见浸塑网隔离栅网片大样图(二)。
3、桥梁防护网应作防雷接地处理,接地电阻应小于10欧。
4、立柱(冷弯卷边槽钢)采用70*40*15*2.5mm材料。
5、冷拔钢丝电焊网采用50*50*2.2mm材料。
6、表面防腐工艺采用浸塑薄荷绿防腐工艺处理。
安平县秉德丝网制品有限公司
手机: 朱经理 13292231119
微信: 朱经理 13292231119
(加微信看生产视频)
传真: 0318-8090660
Q Q: 3219383557
邮箱:3219383557@qq.com
地址:河北省安平县工业园东区经五路12号2幢
网站首页
电话
短信
联系我们