广西桂林至钦州港公路车行天桥防抛网专业生产厂家
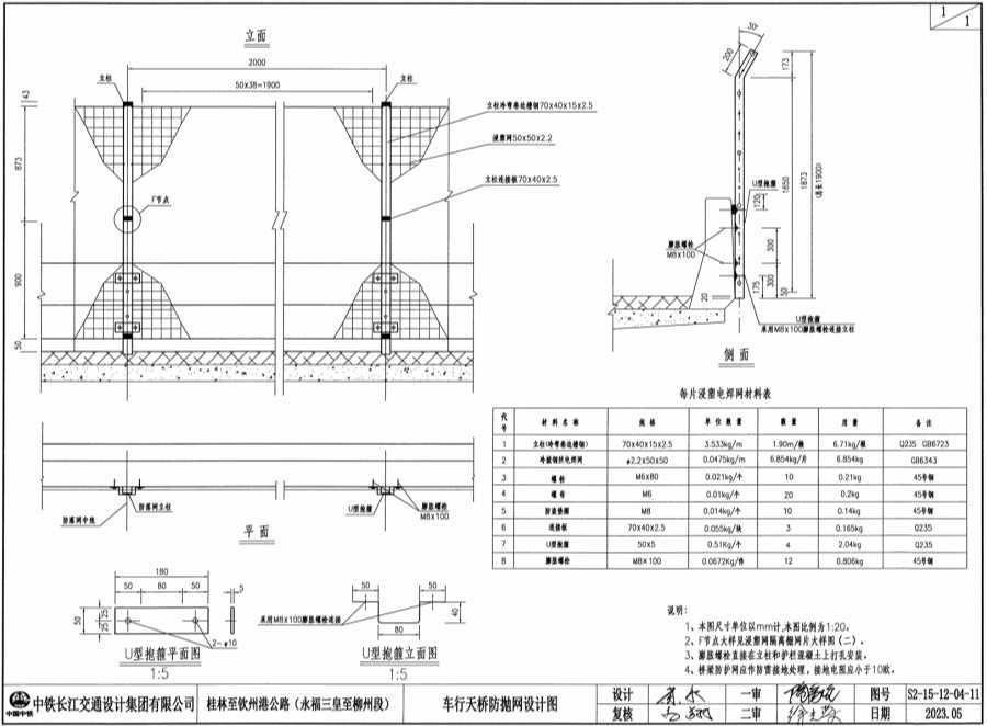
1、本图尺寸单位以mm计,本图比例为1:20。
2、F节点大样见浸塑网隔离栅网片大样图(二)。
3、膨胀螺栓直接在立柱和护栏混凝士上打孔安装.
4、桥梁防护网应作防雷接地处理,接地电阻应小于10欧。
安平县秉德丝网制品有限公司
手机: 朱经理 13292231119
微信: 朱经理 13292231119
(加微信看生产视频)
传真: 0318-8090660
Q Q: 3219383557
邮箱:3219383557@qq.com
地址:河北省安平县工业园东区经五路12号2幢
网站首页
电话
短信
联系我们