广西桂林至钦州港公路浸塑网隔离栅专业生产厂家
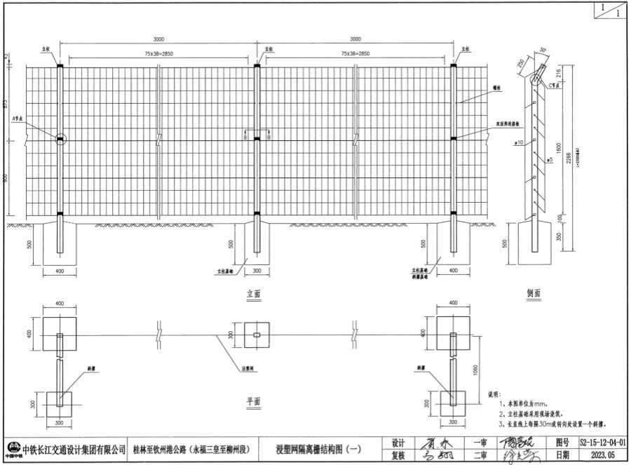
1、本图尺寸均以mm为单位。
2、立柱弯折处先将两翼切割,然后冷弯对焊成型。
3、立柱材料的力学性能应符合GB700,尺寸规格应符合GB6723。
4、施焊前,要求各单件矫正平直并去除毛刺及锈迹。
5、焊接部位要求过渡圆滑,无夹渣、虚焊、气孔等缺陷。
6、浸塑层必须均匀、亮泽,不得存在针孔、流淌堆积、粘结等浸塑缺陷。
7、立柱、连接件、螺栓、螺母、垫圈等浸塑层厚度>0.38mm,网片浸塑层厚度>0.30mm。
安平县秉德丝网制品有限公司
手机: 朱经理 13292231119
微信: 朱经理 13292231119
(加微信看生产视频)
传真: 0318-8090660
Q Q: 3219383557
邮箱:3219383557@qq.com
地址:河北省安平县工业园东区经五路12号2幢
网站首页
电话
短信
联系我们