
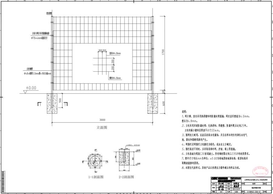
山西长治光伏发电项目钢丝网围栏生产厂家
1、网片横、坚丝采用热浸镀锌的防腐处理措施,网丝直径塑前为4.0mm,塑后为4.8mm。
2、立柱采用双道防腐处理: 先热浸锌,再镀塑,防腐年限应达到25年。立柱的镀锌层厚度不小于55um。
3、围网经久耐用,在涂层表面未有腐蚀,并且在样本的任何部位未有气泡、裂纹和裂缝现象的产生。
4、网围栏及网围栏立柱颜色为绿色,或由业主方确定。
5、围栏高差不同时,应采取局部补网、护坡、填土等措施。
6、立柱基础为现浇C20素混凝土。所有钢材需达到Q235B的材质要求。
7、图中尺寸均以mm为单位,±0.00为场地原始地面标高,桩顶标高采取随坡就势的原则。
8、本图仅代表样式,具体产品以参建各方最终确认的样品为准。