
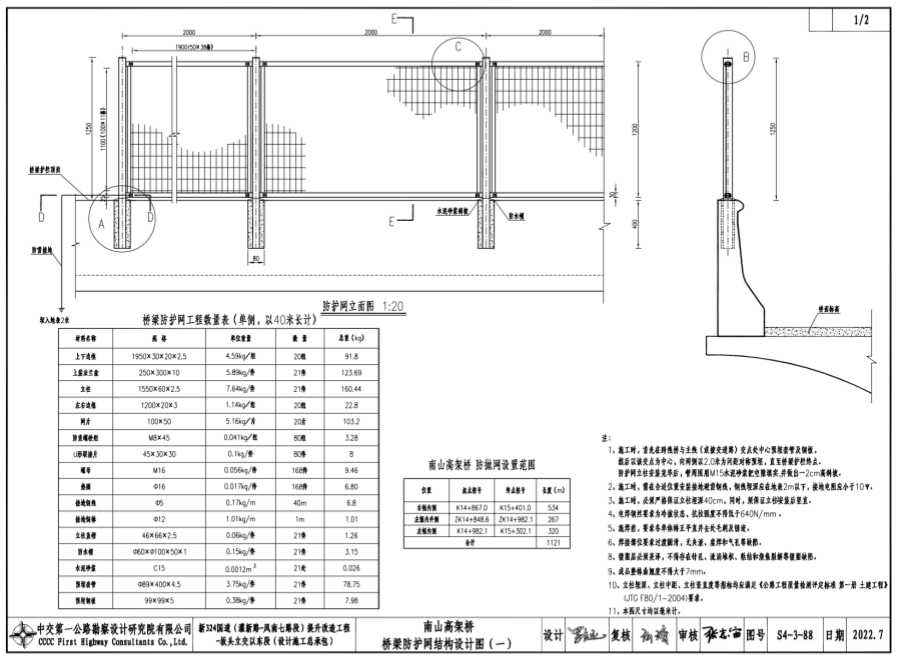
新324国道高架桥桥梁防护网生产厂家
1、施工时,首先在跨线桥与主线(或被交道路)交点处中心预埋套管及钢板,然后以该交点为中心,向两侧以2.0米为间距对称预埋,直至桥梁护栏终点。防护网立柱安装完毕后,管周围用M15水泥砂浆把空隙填实,并做出-2cm高斜坡。
2、施工时,需在合适位置安装接地避雷铜线,铜线埋深应在地表2m以下,接地电阻应小于10Ω。
3、施工时,必须严格保证立柱埋深40cm,同时,须保证立柱安装后竖直。
4、电焊钢丝要求为冷拔状态,抗拉强度不得低于640N/mm。
5、施焊前,要求各单体矫正平直并去处毛刺及锈迹。
6、焊接部位要求过渡圆滑,无夹渣、虚焊和气孔等缺陷。
7、镀塑层必须亮泽,不得存在针孔、流淌堆积、粘结和烧焦裂解等镀塑缺陷.
8、成品整体曲翘度不得大于7mm。
9、立柱埋深、立柱中距、立柱坚直度等指标均应满足《公路工程质量检测评定标准 第一册 土建工程
(UTG F80/1-2004)要求。
10、本图尺寸均以毫米计。