新疆昌吉S240线准东大井服务区至奇台公路改扩建刺丝网隔离栅生产厂家
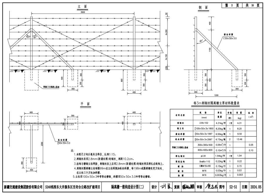
1.本图尺寸均以毫米为单位,比例1:15。
2.刺钢丝采用2.8mm(防腐处理)的钢丝,刺距10.2cm。
3.挂钩与槽钢立柱焊接,刺钢丝拉上后用2.8mm(防腐处理)的钢丝将其扎在铁钩上。
4.刺钢丝隔离栅立柱每隔99m在立柱两侧加纵向斜撑,每198m或隔离栅改变方向处,在立柱三个方向加斜撑。
5.立柱用100X50x3冷弯等边槽钢,斜撑用50x50x30冷弯等边槽钢。
安平县秉德丝网制品有限公司
手机: 朱经理 13292231119
微信: 朱经理 13292231119
(加微信看生产视频)
传真: 0318-8090660
Q Q: 3219383557
邮箱:3219383557@qq.com
地址:河北省安平县工业园东区经五路12号2幢
网站首页
电话
短信
联系我们