
山东济南防落物网专业生产厂家
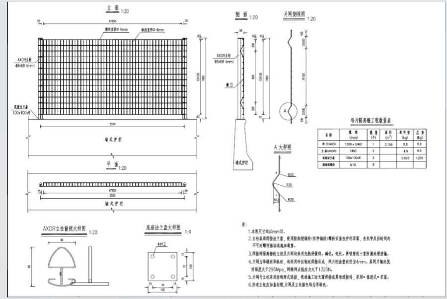
1,本图尺寸均以mm计。
2.立柱底部焊接法兰盘,使用胶粘型(化学锚栓)螺栓安装在护栏顶面,在化学反应时间内不可对螺杆摇动或施加载重。
3.焊接网隔离栅的立柱及片网均采用先热浸镀锌、磷化,钝化、再喷塑的三重防腐处理措施。
4.片网为单横丝单纵丝,均采用冷拉钢丝焊接而成,网片的涂望丝径为4mm。其网片钢丝抗拉强度大于295Mpa,网格焊点抗拉力大于1320N。
5.片网与立柱采用挂钩形式连接,现场施工时无需焊接或其他连接件,采用”推进式” 安装。
6.所有立桂应加盖柱帽,片网及立柱颜色均为草绿色。