
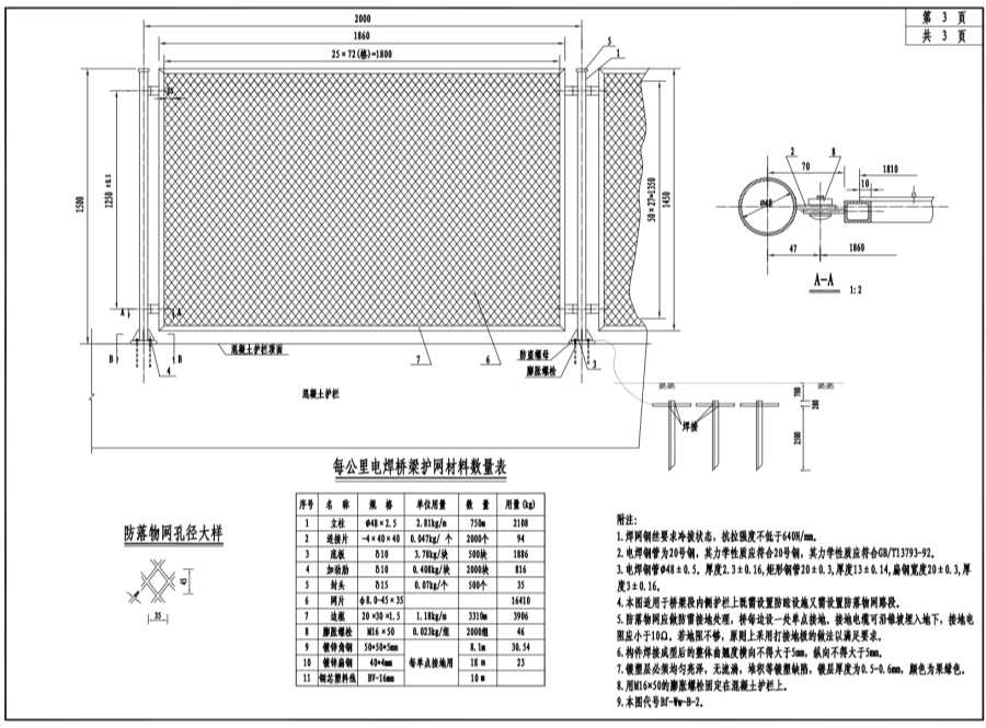
G59呼北高速湖南省新化至新宁段XXSJ03标段第3施工标段Bf-Ww-B-2防落物网生产厂家
附注
1.焊网钢丝要求冷拔状态,抗拉强度不低于640N/mm。
2.电焊钢管为20号钢,其力学性质应符合20号钢,其力学性质应符合GB/T13793-92
3.电焊钢管φ48±0.5。厚度2.5±0.16。矩形钢管20±0.3,厚度1.5±0.14,扁钢宽度40±0.3,厚度4±0.16。
4.本图适用于桥梁段内侧护栏上即需设置防眩设施又需设置防落物网路段。
5.防落物网应做防雷接地处理,桥每边设一处单点接地。接地电缆可沿锥坡埋入地下,接地电阻应小于10欧姆。若地阻不够,原则上采用打接地极的做法以满足要求。
6.构件焊接成型后的整体曲翘度横向不得大于5mm,纵向不得大于5mm。
7.镀塑层必须均匀亮泽,无流淌,堆积等镀塑缺陷,镀层厚度为0.5-0.6,颜为果绿色。
8.用M16x50的膨胀螺栓固定在混凝土护栏上。
9.本图代号Bf-Ww-B-2。