
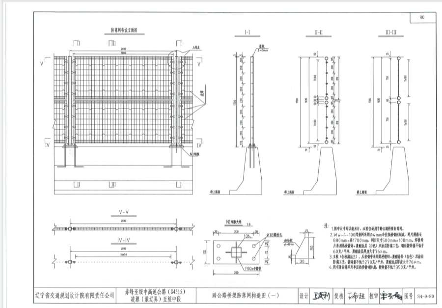
赤峰至绥中高速公路(G4515)凌源 (蒙辽界)至绥中段跨公路桥梁防落网专业生产厂家
1.图中尺寸均以毫米计,本图适用于跨公路桥梁防落网。
2.Ww-4-100焊接网采用4mm拉低碳钢丝制成,网片规格长880mmx高1700mm,网目尺寸50mmx100mm。焊接网片采用热浸镀锌+聚酯涂层(白色)双涂层防腐工艺,钢丝镀锌量不低于60克/平米,聚酣涂层厚度大于76微米。
3.立柱(含柱脚法兰)、压接钢带采用热浸镀锌+聚酯涂层(白色)双涂层防腐工艺,镀锌量不低于270克/平米,聚酯涂层厚度大于76微米。
4.所有紧固件采用单层热浸镀锌防腐,镀锌量不低于350克/平米。