G0321德州至上饶高速公路祁门至皖赣界段Gs-N-Gw防眩网专业生产厂家
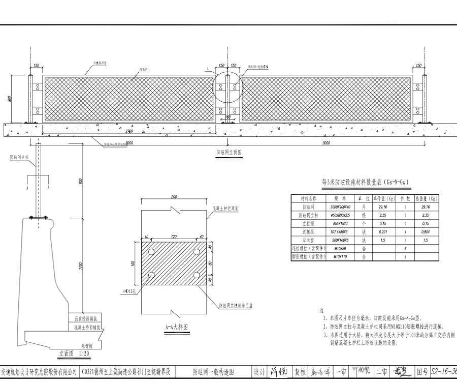
1、本图尺寸单位为毫米,防设施采用Gs-N-Gw型。
2、防眩网立柱与混凝土护栏同采用M10X110膨胀螺栓进行连接。
3、本图适用于大桥、特大桥及长度大于等于100米的分离立交桥内侧钢筋混凝土护栏上防眩设施的设置。
安平县秉德丝网制品有限公司
手机: 朱经理 13292231119
微信: 朱经理 13292231119
(加微信看生产视频)
传真: 0318-8090660
Q Q: 3219383557
邮箱:3219383557@qq.com
地址:河北省安平县工业园东区经五路12号2幢
网站首页
电话
短信
联系我们