G0321德州至上饶高速公路祁门至皖赣界段焊接网隔离栅专业生产厂家
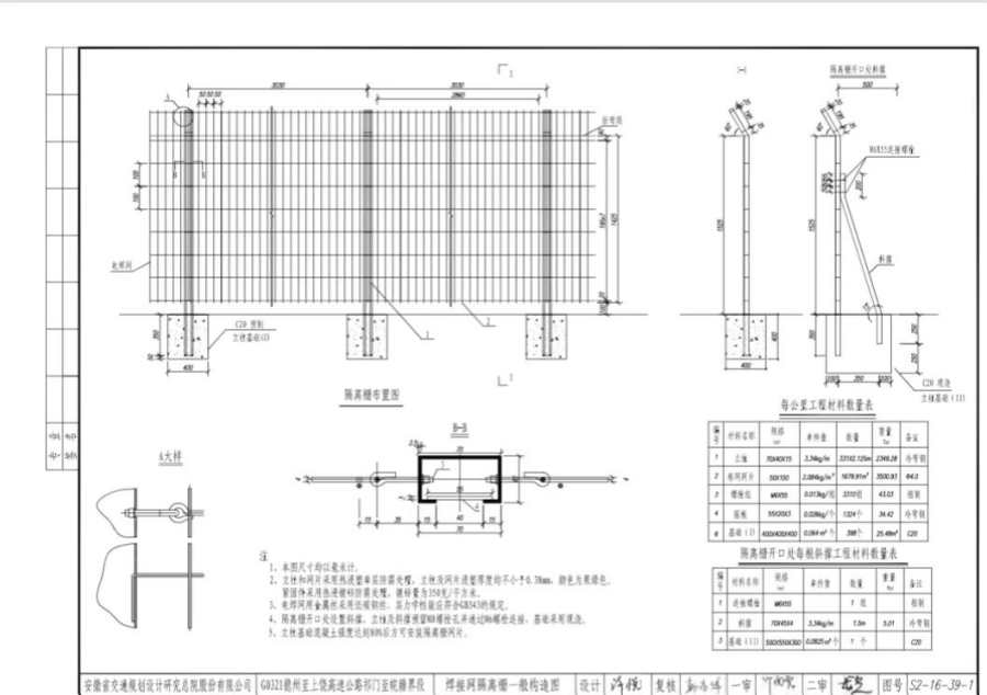
1、本图尺寸均以毫米计。
2、立柱和网片采用热浸塑单层防腐处理,立柱及网片浸塑厚度均不小于0.38mm,颜色为果绿色。紧固件采用热浸镀锌防腐处理, 镀锌量为350克/平方米。
3、电焊网用金属丝采用低碳钢丝,其力学性能应符合GB343的规定。
4、隔离栅开口处设置斜撑,立柱及斜撑预留M8螺栓孔并通过M6螺栓连接,基础采用现浇。
5、立柱基础混凝土强度达到70%后方可安装隔离栅网片。
安平县秉德丝网制品有限公司
手机: 朱经理 13292231119
微信: 朱经理 13292231119
(加微信看生产视频)
传真: 0318-8090660
Q Q: 3219383557
邮箱:3219383557@qq.com
地址:河北省安平县工业园东区经五路12号2幢
网站首页
电话
短信
联系我们