
G30连霍高速公路哈密至吐峪沟段改扩建工程电焊网隔离栅生产厂家
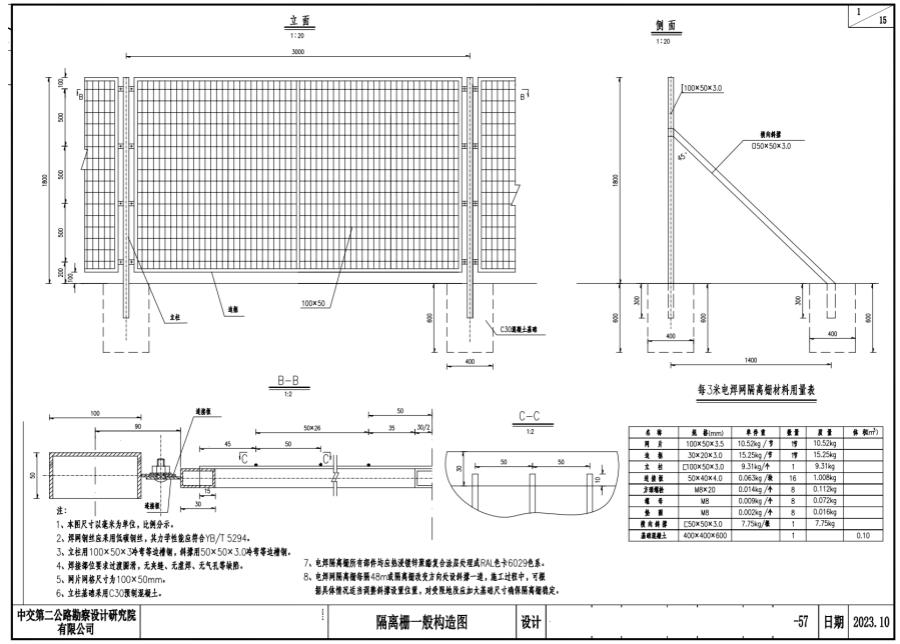
1、本图尺寸以毫米为单位,比例分示。
2、焊网钢丝应采用低碳钢丝,其力学性能应符合YB/T 5294。
3、立柱用100X50X3冷弯等边槽钢,斜撑用50X50X3.0冷弯等边槽钢。
4、焊接部位要求过渡圆滑,无夹缝、无虚焊、无气孔等缺陷。
5、网片网格尺寸为100x50mm。
6、立柱基础采用C30预制混凝土。
7、电焊隔离栅所有部件均应热浸镀锌聚复合涂层处理成RAL色卡6029色系。
8、电焊网隔离栅每隔48m或隔离栅改变方向处设斜撑一道,施工过程中,可根据具体情况适当调整斜撑设置位置,对受限地段应加大基础尺寸确保隔离栅稳定。