
荣乌高速烟台枢纽至蓬莱枢纽改扩建铁路桥防护网生产厂家
1、本图除注明者,余均以毫米计。
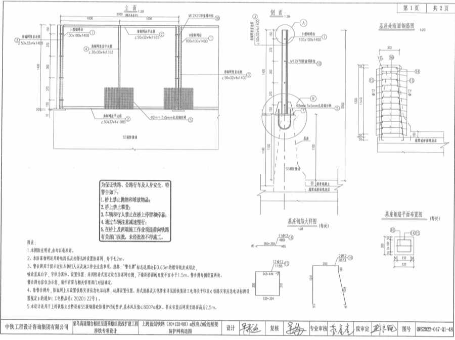
2、本防落物网适用跨铁路孔及相邻孔跨设置防落网,每节长2m。
3、警告牌用于提示过往车辆行人以及施工作业注意事项。规格“警告牌”标志选用边长0.63m的镀锌铁皮或铝皮,喷涂蓝底白字,字体为黑体。设置位置,采用附着式固定设在防落网内侧,下缘距桥面的高度不宜小于1.5m。警告牌每侧设置两块。警告牌内容仅为示意,制作前需与相关管理部门对接确定。
4、除警告牌外。防抛网上应设置铁路灾害应急电话标牌、标牌设置位置、形式规格及其他要求详见国铁集团工电部关于印发《铁路灾害应急电话标牌设置规定》的通知( 工电桥房函(2020)22号)。
5、本设计适用于上跨铁路立交桥设有SS级钢筋防撞护栏的防护,基本风压值≤800Pa地区。要求安装后网顶至路面高为2.5m。