山西忻州岢岚县光伏场区围栏专业生产厂家
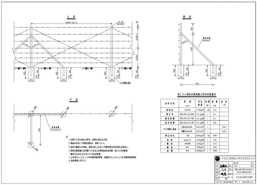
1.本图尺寸均以毫米为单位,绘图比例仅为示意。
2.刺铁丝采用12号镀锌刺铁丝,刺距10cm。
3.挂钩与槽钢立柱焊接,刺铁丝拉上后用12号镀锌铁丝将其绑扎在铁钩上。
4.刺铁丝隔离栅立柱每隔100米在立柱两侧加纵向斜撑,每200米或隔离栅改变方向处,在立柱三个方向加斜撑。
5.立柱用50x50x2.5冷轧镀锌镁铝带钢,斜撑用50x50x2.5冷轧镀锌镁铝带钢。
6.基础混凝土用C25。
安平县秉德丝网制品有限公司
手机: 朱经理 13292231119
微信: 朱经理 13292231119
(加微信看生产视频)
传真: 0318-8090660
Q Q: 3219383557
邮箱:3219383557@qq.com
地址:河北省安平县工业园东区经五路12号2幢
网站首页
电话
短信
联系我们