
邹城至济宁公路工程编织网隔离栅专业生产厂家
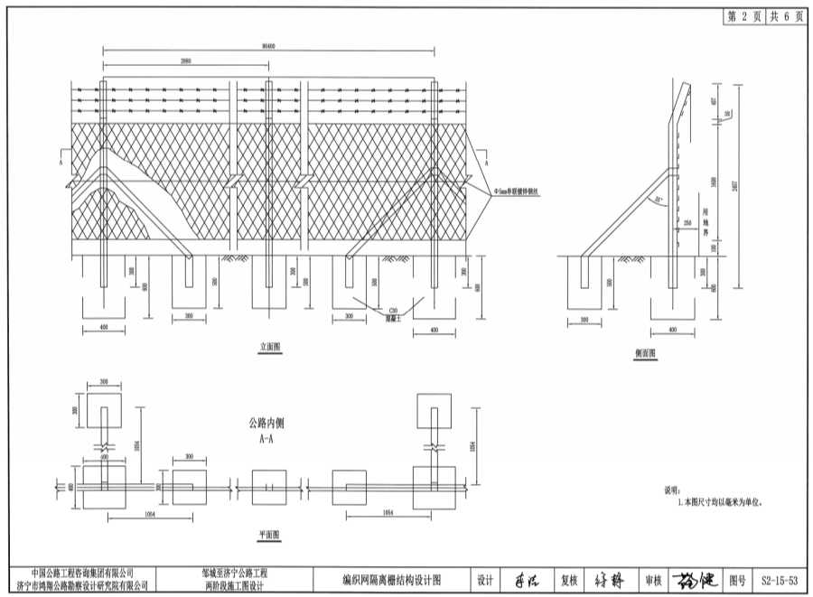
1.本图尺寸均以毫米为单位。
2.隔离栅沿公路用地界布置,立柱在用地界内侧25cm处。
3.用地界内地面必须进行休整、顺坡、整平,使隔离栅立柱水平安装或顺斜坡安装。
4.隔离在平面拐点加单向支撑,在跨越沟渠或其它障碍物时加二向支撑,在平直段每86.4米加一个三向支撑,其它不加支撑。
5.在平面拐点处隔离的夹角<180°(如A点所示)时,3根串联钢丝在立柱上绕一圈后进行固定。
6.所有弯钩的尺寸均为35X10。
7.加工完毕后进行热浸镀锌,镀锌层重量为500g/㎡。
8.编织网张拉紧并就位后,应将对应于立柱弯钩处的每根编织网钢丝和串联钢丝挂在立柱弯钩上,将立柱上所有的弯钩压下扣紧编织网钢丝,并将串联钢丝压入槽内。