
长垣至修武高速公路封丘至修武段刺铁丝隔离栅专业生产厂家
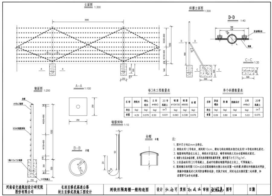
1.图中尺寸均以mm为单位。
2.刺铁丝用12号铁丝,刺间距10cm,横向与斜向刺铁丝相交处应用14号铁丝绑扎固定。
3.钢筋倒钩焊接在立柱上,刺铁丝安装完后,砸弯倒钩使之完全合围刺铁丝固定。
4.钢管立柱应加盖柱帽,采用先热浸镀锌防腐再浸镀量不小于275q/㎡。
5.立柱基础采用C20号混凝土,基础中的横向钢筋焊接在立柱上,可预制施工。
6.隔离栅应每间隔100m左右在隔离栅的内侧立柱处设置一处斜撑,斜撑柱和抱箍底村焊接,抱箍和抱箍底衬之间用防盗螺栓连接:变换方向时,同时也在内侧设置二处斜撑,如若需要可加多处斜撑。