
山东济南绕城高速公路改扩建工程焊接网隔离栅专业生产厂家
1、隔离栅网片的制作,要求网眼均匀、美观。
2、刺钢丝需采用低碳冷拉钢丝,并应当符合 YB/T5294-2009 的规定,刺间距要求均匀、美观。
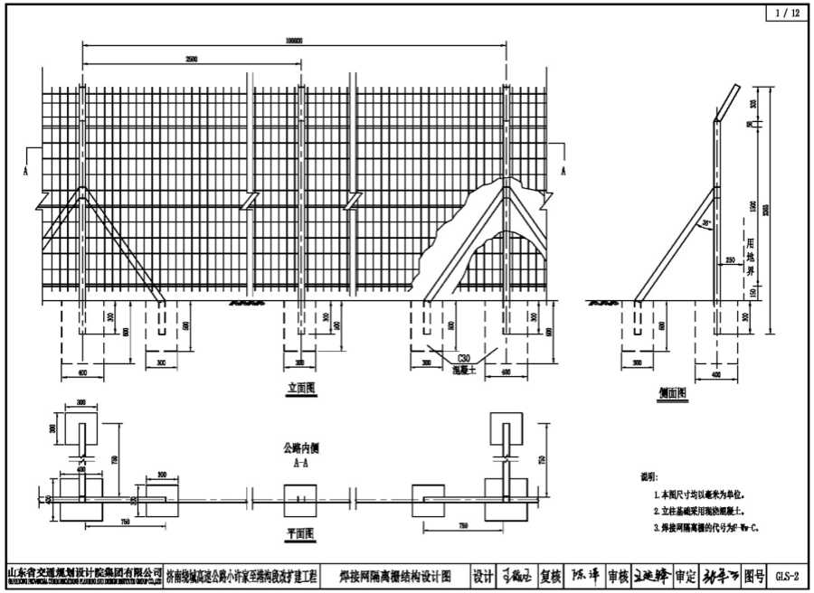
3、立柱以及斜撑,采用冷弯等边槽钢,并应当符合 JTGF71-2006 的规定。
4、焊接网隔离栅的所有金属部件的防腐采用热浸镀锌浸塑复合涂层防腐处理工艺。热浸镀锌浸塑复合涂层由热浸镀锌内涂层和流化床浸塑外涂层组成。涂塑层为绿色与周围环境相协调。全线色号应统一。立柱、斜撑的镀锌量应不低于 275g/㎡。浸塑涂层厚度应大于 0.25mm;其它紧固件、连接件的镀锌量应不低于 120g/㎡。浸塑涂层层厚度应大于 0.25mm:隔离栅钢丝的镀锌量应不低于 90g/㎡。浸塑涂层层厚度应大于 0.15mm。
5、焊接网隔离栅防腐处理均应符合《公路交通工程钢构件防腐技术条件》(GB/T18226-2015)的有关规定。