
勐满口岸永久性围网专业生产厂家
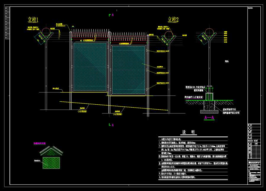
一、本图大样适用于围网各段。
二、围网基台采用混凝土,抹灰饰面,高度350mm。
三、围网采用金属菱型网状钢管架,钢管高度不低于2.5m,直径不小于100mm,金属菱型网高2.2m,宽1.5m,网丝直径不小于5mm,网眼见方不大于0.0025平方米。上部刺丝网每根间距100mm。
四、围墙每两开间设一过水洞,洞宽120,洞高60,洞底与地面同高。洞内随砌随粉20厚1:2水泥砂浆。
五、金属围网须经表面热镀锌和浸塑防腐防锈处理,锌层平均厚度70微米,塑层采用浸塑处理厚度在500微米左右。金属围网所有铁件刷防锈漆二道,面漆颜色为墨绿色。
六、图内尺寸单位:尺寸标注为毫米。
七、现场根据实际情况选用永久围网或临时围网。