山东省彭楼灌区防护网生产厂家
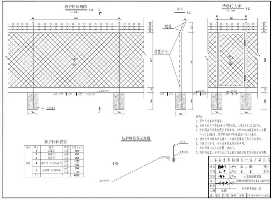
1、图中尺寸单位为毫米。
2、护栏样式为下部1.6米为勾花护栏,上部0.3米为3根刺绳。
3、防护隔离网及配件要求为热镀锌,立柱为φ48毫米钢管,壁厚不小于3.0毫米,防护网钢丝和刺绳直径不小于4毫米。
4、镀锌方式为整体式热镀锌,热镀锌层厚度不得小于70微米。
5、本图仅为参考,也可选用其他型式防护网。
6、防护网每150m左右设置一活动门。
7、防护网位置、长度及活动门位置可根据实际需求相应适当调整。
安平县秉德丝网制品有限公司
手机: 朱经理 13292231119
微信: 朱经理 13292231119
(加微信看生产视频)
传真: 0318-8090660
Q Q: 3219383557
邮箱:3219383557@qq.com
地址:河北省安平县工业园东区经五路12号2幢
网站首页
电话
短信
联系我们