湖北机非隔离栏杆专业生产厂家
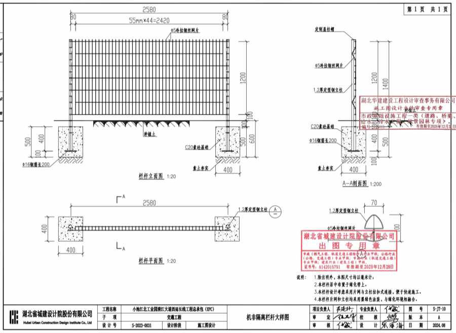
1.除注明外,本图尺寸均以毫米计。
2.本栏杆居中布置于绿化带上。
3.本栏杆设计考虑采用片网与立柱拉扣式连接,便于快速施工。
4.本栏杆片网和立柱均采用墨绿色涂装,与绿化环境相融合。
安平县秉德丝网制品有限公司
手机: 朱经理 13292231119
微信: 朱经理 13292231119
(加微信看生产视频)
传真: 0318-8090660
Q Q: 3219383557
邮箱:3219383557@qq.com
地址:河北省安平县工业园东区经五路12号2幢
网站首页
电话
短信
联系我们