
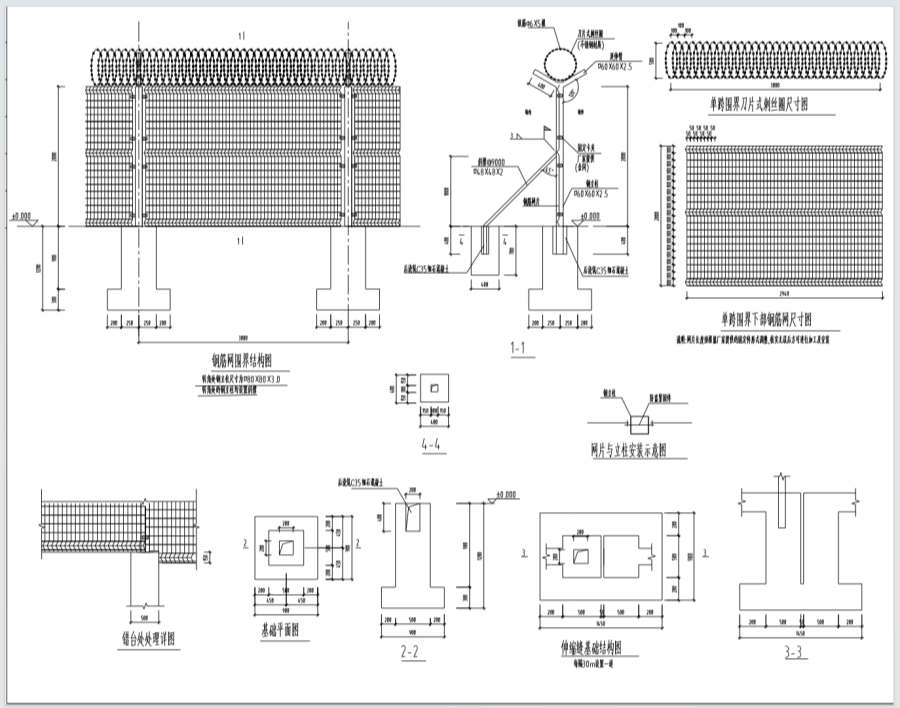
呼和浩特市和林格尔机场钢筋网围界专业生产厂家
总高度2.5m。立柱截面尺寸为口60x60x2.5mm、延伸臂截面尺寸为口60x60x2.5mm。转角处立柱截面尺寸为口80x80x3.0mm,斜撑截面尺寸为口48x48x2.0mm@9000。钢筋网片网格尺寸为50x100mm(中到中),滚笼采用刀片式刺丝(不锈钢材质),直径为500mm。不用考虑基础。立柱间距3米,转角暂按15处考虑钢筋网围界的网片、立柱及延伸臂的防腐处理采用金属保护层结合涂塑保护层的复合保护。金属保护层采用热镀锌,镀层厚度:网片及连接件部分不小于120g/㎡。立柱及延伸臂部分不小于270g/㎡。涂塑层采用高附着力聚酯涂层,涂层厚度≥80um(干膜),涂塑工艺由内及外为富锌磷化、有机环氧涂层、热固性聚酯粉末涂层。