
湖北省高架桥桥梁防落物网专业生产厂家
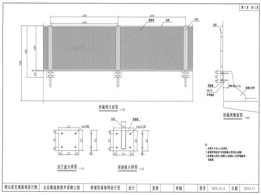
1.钢板网为整网,单片尺寸为1360mmx1940mm。
2.所有钢构件应优先加工焊接,后进行防腐处理,所有构件均采用先热浸镀锌再涂塑进行防腐处理,涂塑采用聚乙烯或聚氯乙烯。网片平均镀锌层质量90g/㎡,涂塑层厚度大于0.15mm;紧固件、连接件平均镀锌层质量120g/㎡,涂塑层厚度大于0.25mm;边框、立柱、连接板平均镀锌层质量270g/㎡,涂塑层厚度大于0.25mm。
3.防落物网应做好防雷接地处理,接地电阻不大于10欧姆。若地阻不够,原则上采用打接地级的做法以满足要求。