广东汕头中央分隔带隔离网栏专业生产厂家
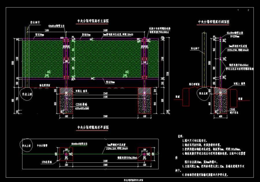
说明:
1.图中尺寸均以毫米计。
2.钢材采用Q235钢,表面热镀锌处理。
3.拦网用整块钢板冲压成型,钢板厚3mm,网眼100x50mm。
4.钢板连接片穿过立柱后与栏网用螺栓连接。立柱中心位置需按图示切出高90mm,宽8mm的槽口。
5.立柱间距2.4m,栏网标准段长度2.32m,基础注意避开乔木树干。
6.非标准段根据实际情况调整单片护网长度。
安平县秉德丝网制品有限公司
手机: 朱经理 13292231119
微信: 朱经理 13292231119
(加微信看生产视频)
传真: 0318-8090660
Q Q: 3219383557
邮箱:3219383557@qq.com
地址:河北省安平县工业园东区经五路12号2幢
网站首页
电话
短信
联系我们