广西从江-融安-荔浦公路防落物网生产厂家
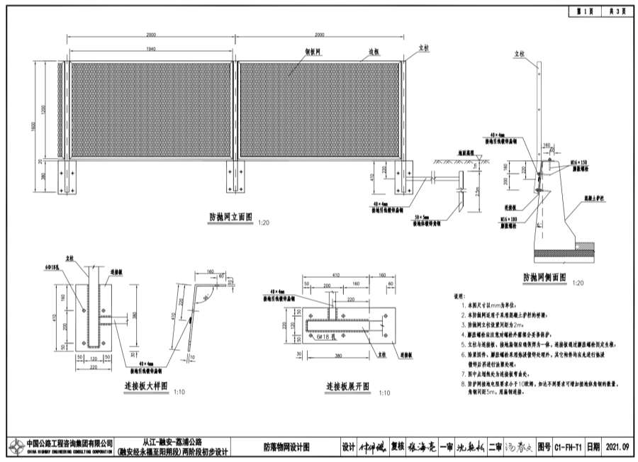
1.本图尺寸以mm为单位。
2.本防抛网适用于采用混凝土护栏的桥梁。
3.防抛网立柱设置间距为2m。
4.膨胀螺栓应注意对螺栓外露部分妥善保护。
5.立柱与连接板、接地扁钢应确保焊为一体,连接板通过膨胀螺栓固定生根。
6.除紧固件、膨胀螺栓采用热浸镀锌处理外。其它构件均应先进行热浸镀锌后再进行涂塑处理。
7.图中点划线处为连接板弯曲处。
8.防护网接地电阻要求小于10欧姆,如达不到要求可增加接地体角钢的数量,角钢间距5m,用扁钢连接。
安平县秉德丝网制品有限公司
手机: 朱经理 13292231119
微信: 朱经理 13292231119
(加微信看生产视频)
传真: 0318-8090660
Q Q: 3219383557
邮箱:3219383557@qq.com
地址:河北省安平县工业园东区经五路12号2幢
网站首页
电话
短信
联系我们