S46长兴至高淳高速公路皖浙省界至郎溪西枢纽段焊接网隔离栅生产厂家
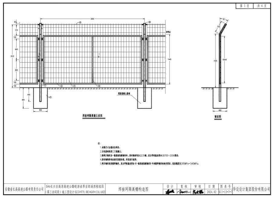
1.本图尺寸以毫米为单位
2.立柱基础采用C25混凝土。
3.除网片钢丝为一般用途低碳钢丝外,所有钢材均为Q235钢,其力学性能应符合GB700-2006要求。
4.所有钢构件均应进行防腐处理,详见设计说明。
5.网片钢丝采用镀锌钢丝,其力学性能应符合《一般用途低碳钢丝》中对镀锌钢丝的相关要求,抗拉强度为295MPa~540MPa。
安平县秉德丝网制品有限公司
手机: 朱经理 13292231119
微信: 朱经理 13292231119
(加微信看生产视频)
传真: 0318-8090660
Q Q: 3219383557
邮箱:3219383557@qq.com
地址:河北省安平县工业园东区经五路12号2幢
网站首页
电话
短信
联系我们