
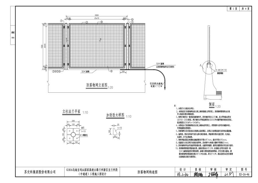
G1816乌海至玛沁国家高速公路兰州新区至兰州段防落物网生产厂家
1、本图尺寸以毫米为单位。
2、本图适用于防落物网设在支线上跨桥混凝土护栏顶上,防落物网预埋件由主线中心线的位置向两侧设置。
3、除网片钢丝为一般用途低碳钢丝外,所有钢材均为Q235钢,其力学性能应符合GB700-2006要求,网片钢丝力学性能须符合GB343中对镀锌钢丝的相关要求抗拉强度为295MPa~540MPa。
4、本图适合于防落物网设在支线上跨桥护栏顶上,若预埋件与护栏内钢筋冲突,可将钢筋绕过预埋件。
5、防落物网立柱安装前应注意磨去底面塑层,以保证与套筒底板有良好的金属接触。
6、施焊前,要求各单体平直并去除毛刺及锈迹,焊接部位要求过渡光滑,无夹渣,无虚焊,无气孔等缺陷。
7、构件焊接成型后的整体曲翘度横向不得大于7mm,纵向不得大于5mm。
8、连接板与立柱及网片边框在组焊时,其对称中心的偏斜不得超过1mm。
9、所有钢构件均应作热浸锌防腐处理,先镀锌再镀塑,镀锌及镀塑要求详见设计说明。
10、防落物网须做防雷接地处理,接地电阻应小于10欧姆。在混凝土护栏内设置一块50X5扁钢连接所有预埋套筒,扁钢与预埋套筒底部焊接,并引至桥头接地。测量防落物网防雷接地电阻小于10欧姆为合格,若大于10欧姆,则应在桥头适当位置增打接地极以满足电阻要求。